Velikost
Parcela
Nadstropje
5.703 m2
Leto gradnje
Leto obnove
Klet
Dvigalo
Spalnice
Šifra oglasa:
PPZ1
V mirnem naselju Polenci prodamo parcelo s pravnomočnim gradbenim dovoljenjem (24. 01. 2024) za gradnjo komfortne, prostorne družinske hiše. Lokacija je idealna za vse, ki si želite bivanja v objemu narave, z veliko zasebnosti, hkrati pa dobro povezavo z bližnjimi kraji.
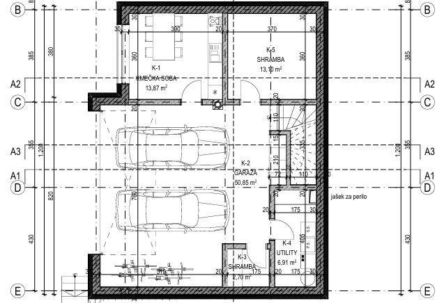
Predviden projekt omogoča gradnjo enostanovanjske hiše (K+P+1) s skupno neto uporabno površino 256,05 m²:
KLET:
velika garaža za dva avtomobila
večja shramba
manjša shramba
utility s priključki za pralni in sušilni stroj ter z jaškom za perilo do obeh nadstropij
kmečka soba s kuhinjo
stopnišče v pritličje
PRITLIČJE:
vhod in predprostor
manjša kopalnica z wc-jem
garderoba
kabinet oz. pisarna ali soba za goste
dnevni prostor
kuhinja – jedilnica
hodnik in stopnišče
NADSTROPJE
3 otroške sobe
zakonska spalnica z lastno garderobno sobo
večja kopalnica
hodnik in stopnišče
INFRASTRUKTURA in LOKACIJA
vodovodni in elektro priključek na parceli
za komunalne odplake predvidena čistilna naprava
urejen dostop po asfaltirani cesti - javno dobro
zemljišče, idealno za vrt, sadovnjak ali prostočasne dejavnosti
Zakaj je ta parcela prava izbira?
Pravnomočno gradbeno dovoljenje – možnost začetka gradnje brez čakanja in birokracije
Mirna, zelena okolica – popolna za ljubitelje narave
Funkcionalen in sodoben tloris
Do Ptuja samo 15 min vožnje
Hiša bo umeščena v zeleno podeželsko okolje, obdano z gozdovi in travniki. Kraj ponuja številne možnosti za sprehode, kolesarjenje, tek ali izlete v naravo. V bližini so vinske ceste in turistične kmetije.
Kljub mirni lokaciji so osnovna infrastruktura in storitve hitro dosegljive. Osnovna šola je oddaljena le 2,5 km.



















